Quadrilocale in vendita

Reggio Nell'Emilia, Via Caduti in Missione di Pace - Manenti
€ 296.000
4 locali 4 locali
133 Mq 133 Mq
2 bagni 2 bagni

Quadrilocale in vendita

Reggio Nell'Emilia, Via Caduti in Missione di Pace - Manenti

Descrizione annuncio

Cerchi la tranquillità senza rinunciare alla modernità?

Situato in una delle zone residenziali più esclusive e silenziose della città, proponiamo in vendita un ampio appartamento del 2006, caratterizzato da un ingresso totalmente indipendente e ampi spazi esterni vivibili.

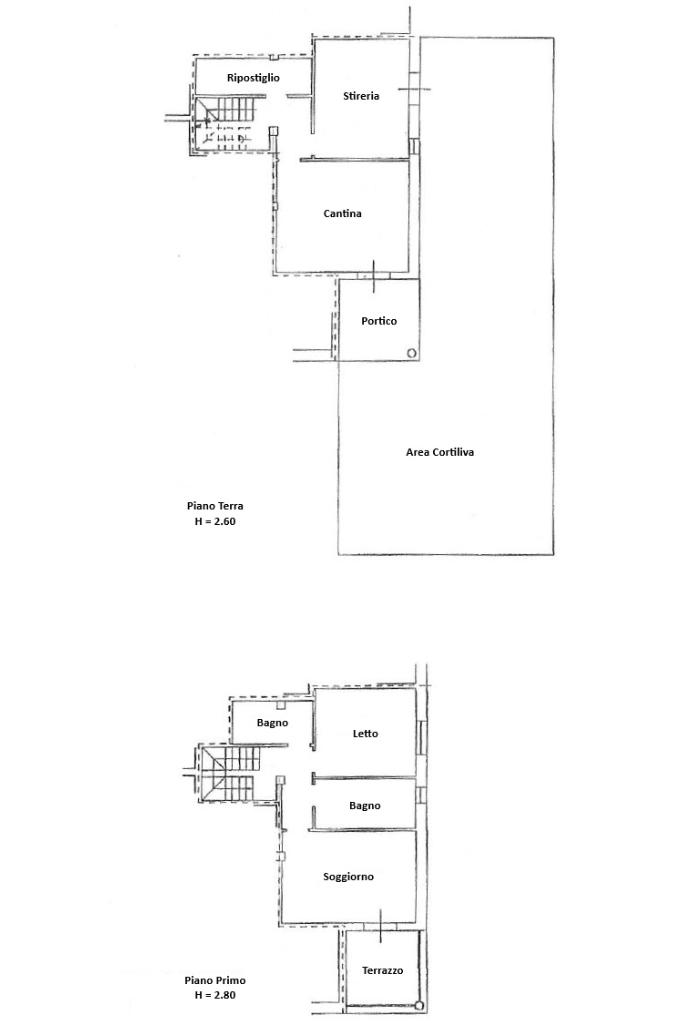
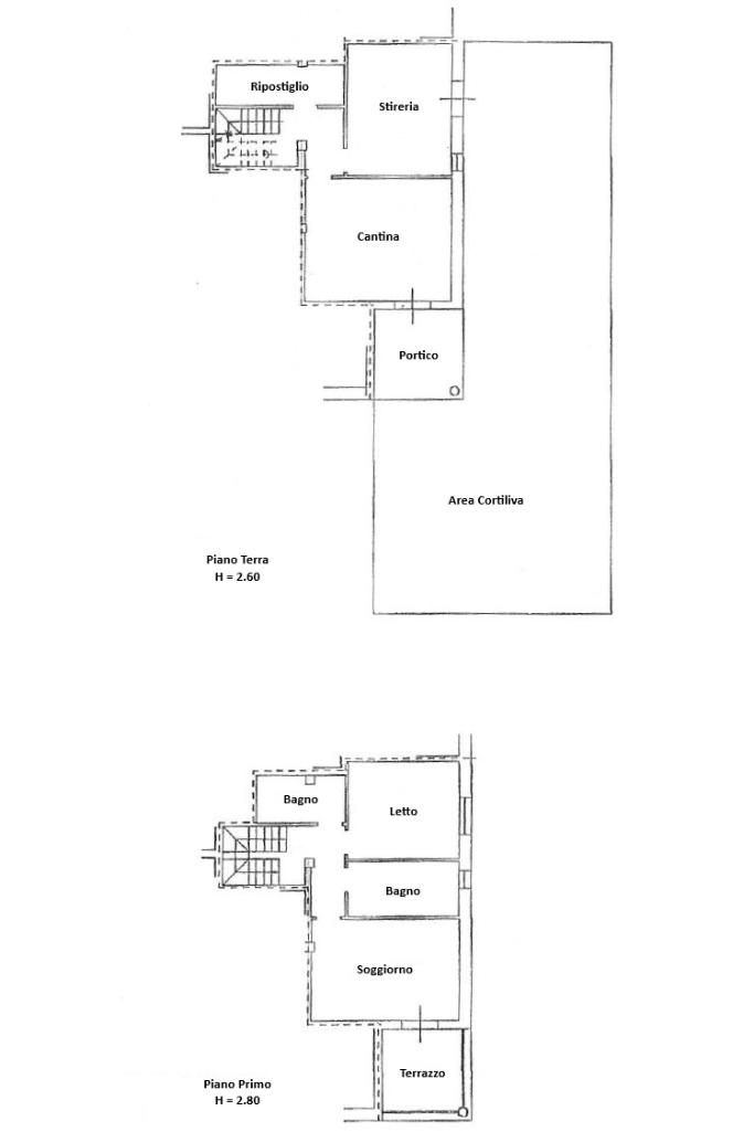
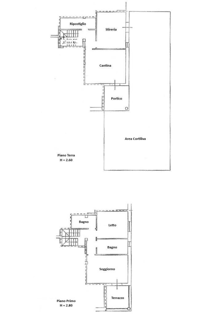
Al piano terra troviamo l’ingresso il quale si apre su una zona living in open-space, un ambiente arioso e moderno perfetto per momenti di convivialità. Da qui si accede direttamente al vero pezzo forte dell'immobile; un ampio giardino privato preceduto da un accogliente portico, ideale per cene all'aperto, zone relax o per far giocare i tuoi animali domestici in totale sicurezza. Completa il piano un primo bagno di servizio.

Una comoda scala interna conduce al piano superiore, dedicato al riposo e alla privacy composta da una camera matrimoniale spaziosa e luminosa, una seconda camera ideale come cameretta o studio, un secondo bagno completo, un pratico ripostiglio, essenziale per l'organizzazione della casa ed un ampio terrazzo che si accede dalla camera matrimoniale.

Perché scegliere questa casa?

Costruzione recente del 2006, con finiture moderne e ottima efficienza.

Indipendenza totale, nessun passaggio comune, per la massima privacy.

Vivere l'esterno, un giardino generoso ed un portico coperto sono rarità in contesti così serviti.

Contesto d'élite, zona esclusivamente residenziale, lontana dal traffico e immersa nel silenzio.

Non lasciarti sfuggire questa opportunità unica. Contattaci oggi stesso per fissare una visita e scoprire la tua prossima casa!

Se sei interessato/a, chiamaci al 346.1784777/0522.455434 per fissare la tua visita privata.

Saremo lieti di fornire supporto e assistenza per aiutarvi nella scelta della vostra nuova casa.

Oppure contattaci sulle nostre pagine social:

- facebook: gruppo tecnocasa reggio emilia rosta;

- instagram: tecnocasa_rosta.

Mostra tutto

Nelle vicinanze

Trasporto pubblico Trasporto pubblico
buco del Signore - Chiesa
buco del Signore - Chiesa
570 m
Via Tassoni - Casello Pozzo
Via Tassoni - Casello Pozzo
820 m
Due Maestà
Due Maestà
1,8 Km
Reggio Ospizio
Reggio Ospizio
2,6 Km
Ricariche auto elettriche Ricariche auto elettriche
Eneldrive Arcispedale S. Maria Nuova
1,7 Km
Eneldrive Centro Commerciale Quinzio
2,6 Km
Eneldrive Via Giorgione
2,7 Km
Eneldrive Piazza del Tricolore
2,7 Km
CF3000
2,8 Km
Scuole Scuole
Scuola primaria statale "M.L. King"
650 m
Scuola primaria Steiner-Waldorf
690 m
Scuola secondaria di I grado "S. Pertini"
1,5 Km
Scuola primaria statale "Marco Polo"
1,5 Km
Scuola Elementare "R. Pezzani"
1,8 Km
Farmacia Farmacia
Farmacia Acquechiare
830 m
Farmacia San Pellegrino
1,1 Km
Farmacia Ospedale H24
1,7 Km
Farmacia
2,1 Km
Farmacia di Fogliano
2,2 Km
Ospedali Ospedali
Azienda ospedaliera Arcispedale Santa Maria Nuova
1,4 Km
Casa di cura policlinica Villa Verde
1,5 Km
Supermercati Supermercati
DiPiù
1,1 Km
CONAD Reggio Sud
1,1 Km
Sigma
1,3 Km
Coop Canalina
1,9 Km
CONAD
2,1 Km
Negozi Negozi
Panificio Reggiano
1,1 Km
CONAD CITY
1,7 Km
ECU
1,9 Km
Forno
2,5 Km
Il Forno delle Delizie
2,6 Km
Bar Bar
Bar
820 m
Bar Prestige
1,1 Km
Chocabek
1,2 Km
Bar Didì
2,1 Km
Caffetteria L'Incontro
2,3 Km
Ristoranti Ristoranti
Buco Della Signora
350 m
Nostrano
670 m
Grottamarina
1,2 Km
Pizzeria da Tommy
1,6 Km
Quantum
1,6 Km
Mostra tutto

Caratteristiche

Rif.:
61179656
Piano:
Su più livelli di 2
Totale piani:
2
Terrazzi:
1
Camere da letto:
2
Arredamento:
Parziale
Mostra tutto
Prezzo Prezzo
€ 296.000
Rata mutuo Rata mutuo
€ 1.412 / mese
Proponi il tuo prezzoProponi il tuo prezzo
Immobile valutato con T·Valuta

Classe Energetica

D
D
D
D
D
D
D
D
D
EP globale non rinnovabile:
123.68 kW h/m² anno
EP globale rinnovabile:
3.67 kW h/m² anno
EP invernale del fabbricato:
EP estiva del fabbricato:
Anno di costruzione:
2006
Riscaldamento:
Autonomo
Tipo impianto:
A radiatori
Tipo alimentazione:
Metano

Ti interessa visionare l'immobile?

Fissa un appuntamento  Fissa un appuntamento

Richiedi informazioni

Clicca su Leggi per aprire l'informativa
* Questi campi sono obbligatori

Calcola il tuo mutuo

Semplice e senza impegno
Anticipo

( % )
Mutuo

( % )

pochi semplici passi

inserisci i tuoi dati
Questionario completato
Grazie per aver richiesto un appuntamento senza impegno con un nostro Consulente del Credito e Assicurativo.

Hai inserito correttamente tutti i dati necessari e a breve riceverai una e-mail con un link da convalidare per inviare i tuoi dati.
Affiliato
Reggio Emilia 4 Srl
Viale Simonazzi, 8 42121 Reggio Nell'Emilia (RE)

Il nostro staff


  • Antonio Iosso
    Affiliato

  • Eros Gasperoni
    Collaboratore

  • Giovanni Muto
    Affiliato

  • Carlotta Iori
    Coordinatrice

  • Nicolò Soragni
    Collaboratore

  • Pietro Virelli
    Affiliato
Viale Simonazzi, 8 42121 Reggio Nell'Emilia (RE)
Zona: Viale Simonazzi-Rosta-Ospedale-Pappagnocca-Buco del Signore
Mostra su mappa
Orari: Dal lunedì al venerdì 9,00 - 13,00; 15,00 - 20,00. Il sabato 9,00 - 13,00; pomeriggio su appuntamento
Affiliato
Reggio Emilia 4 Srl
Viale Simonazzi, 8 42121 Reggio Nell'Emilia (RE)

2026 Tecnocasa Franchising S.p.A. - P. IVA 08365160152 - Via Monte Bianco 60/A 20089 Rozzano (MI). Ogni agenzia ha un proprio titolare ed è autonoma. Privacy policy | Policy utilizzo | Cookie policy