Quadrilocale in vendita

Reggio Nell'Emilia, Via Ciro Menotti - Ospedale
€ 211.000
4 locali 4 locali
173 Mq 173 Mq
1 bagno 1 bagno

Quadrilocale in vendita

Reggio Nell'Emilia, Via Ciro Menotti - Ospedale

Descrizione annuncio

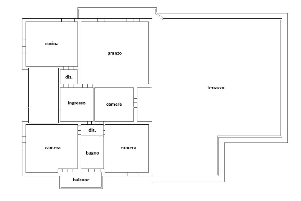
Ampio quadrilocale libero su 4 Lati – Massima Indipendenza e Zero Spese!


Se cerchi una casa che unisca ampi spazi, privacy e l'assenza totale di costi di gestione, questa è la soluzione ideale.
Situato in un contesto esclusivo di sole 3 unità abitative, proponiamo in vendita un luminoso appartamento al primo piano, caratterizzato da un'esposizione libera su tutti i quattro lati.

L’appartamento si distingue per una distribuzione razionale con ambienti generosi.
La zona giorno è composta da un ingresso accogliente che conduce a una spaziosa cucina abitabile e a un soggiorno di ben 35 mq, perfetto per momenti di relax o cene conviviali, con accesso diretto al terrazzo.
Nella zona notte ci si arriva attraverso due pratici disimpegni dl quale si accede alle 3 camere da letto di ampie dimensioni e al bagno funzionale.

Spazi Esterni?
Il terrazzo è di circa 150 mq il quale offre un polmone d'aria. Oltre al terrazzo del soggiorno, la proprietà dispone di un ulteriore balcone.

La proprietà è completa di tutto ciò che serve per la gestione dello spazio e dei veicoli.
Garage privato e un ulteriore posto auto riservato nell'area cortiliva.
Cantina capiente al piano interrato.
Solaio all'ultimo piano di proprietà.

Perché scegliere questo immobile?
Indipendenza totale solo 3 famiglie nello stabile e nessuno spazio confinante con altri appartamenti sui 4 lati.
Zero spese condominiali, un risparmio concreto ogni mese.
Luminosità naturale, l'esposizione quadrupla garantisce luce in ogni momento della giornata.

Contattaci per fissare una visita e scoprire dal vivo il potenziale di questa casa!

Se sei interessato/a, chiamaci al 346.1784777/0522.455434 per fissare la tua visita privata.

Saremo lieti di fornire supporto e assistenza per aiutarvi nella scelta della vostra nuova casa.

Oppure contattaci sulle nostre pagine social:

- facebook: gruppo tecnocasa reggio emilia rosta;

- instagram: tecnocasa_rosta.

Mostra tutto

Nelle vicinanze

Trasporto pubblico Trasporto pubblico
stazione di Reggio Emilia
stazione di Reggio Emilia
850 m
Reggio Emilia Santa Croce
Reggio Emilia Santa Croce
1,9 Km
Incrocio Via Terrachini
Incrocio Via Terrachini
100 m
Viale Risorgimento
Viale Risorgimento
230 m
Reggio Ospizio
Reggio Ospizio
1,2 Km
Ricariche auto elettriche Ricariche auto elettriche
Eneldrive Via Giorgione
450 m
Eneldrive Piazza del Tricolore
470 m
Eneldrive Stazione FS
770 m
Reggio nell'Emilia Roversi | EnelX
860 m
Eneldrive Arcispedale S. Maria Nuova
910 m
Scuole Scuole
Istituto superiore "A. Motti"
190 m
Scuola primaria statale "A. Dall'Aglio"
340 m
Scuola primaria "G. Zibordi"
360 m
Scuola dell'infanzia comunale Anna Frank
460 m
Scuola dell'infanzia "R. Pezzani"
510 m
Farmacia Farmacia
Farmacia della gabella
540 m
Farmacia Caravita
620 m
Farmacia
650 m
Farmacia Comunale della via Emilia
770 m
Farmacia Ospedale H24
890 m
Ospedali Ospedali
Azienda ospedaliera Arcispedale Santa Maria Nuova
1,0 Km
Casa di cura policlinica Villa Verde
1,9 Km
Supermercati Supermercati
Coop Porta Castello
710 m
Coop Reggio Est
760 m
Conad
920 m
Sigma
1,0 Km
Coop UNO
1,1 Km
Negozi Negozi
ECU
390 m
Pam Local
530 m
Forno
600 m
Kappa di Sposi
700 m
La Boulangerie
730 m
Bar Bar
Caffetteria L'Incontro
120 m
Bar Didì
550 m
Cafè Fontanesi
600 m
Dimmelo tu
610 m
The Craftsman
620 m
Ristoranti Ristoranti
Sushiko
440 m
Profumo di Napoli
440 m
Pizzeria Un Posto Al Sole
460 m
61.1
500 m
Al Vicoletto
530 m
Mostra tutto

Caratteristiche

Rif.:
61178996
Piano:
1 di 3 (Piano basso)
Box:
1
Posti auto:
1
Balconi:
1
Terrazzi:
1
Mostra tutto
Prezzo Prezzo
€ 211.000
Rata mutuo Rata mutuo
€ 979 / mese
Proponi il tuo prezzoProponi il tuo prezzo

Classe Energetica

G
G
G
G
G
G
G
G
G
EP globale non rinnovabile:
0.00 kW h/m² anno
EP globale rinnovabile:
0.00 kW h/m² anno
EP invernale del fabbricato:
EP estiva del fabbricato:
Anno di costruzione:
1970
Riscaldamento:
Autonomo
Tipo impianto:
A radiatori
Tipo alimentazione:
Metano

Ti interessa visionare l'immobile?

Fissa un appuntamento  Fissa un appuntamento

Richiedi informazioni

Clicca su Leggi per aprire l'informativa
* Questi campi sono obbligatori

Calcola il tuo mutuo

Semplice e senza impegno
Anticipo

( % )
Mutuo

( % )

pochi semplici passi

inserisci i tuoi dati
Questionario completato
Grazie per aver richiesto un appuntamento senza impegno con un nostro Consulente del Credito e Assicurativo.

Hai inserito correttamente tutti i dati necessari e a breve riceverai una e-mail con un link da convalidare per inviare i tuoi dati.
Affiliato
Reggio Emilia 4 Srl
Viale Simonazzi, 8 42121 Reggio Nell'Emilia (RE)

Il nostro staff


  • Antonio Iosso
    Affiliato

  • Eros Gasperoni
    Collaboratore

  • Giovanni Muto
    Affiliato

  • Carlotta Iori
    Coordinatrice

  • Nicolò Soragni
    Collaboratore

  • Pietro Virelli
    Affiliato
Viale Simonazzi, 8 42121 Reggio Nell'Emilia (RE)
Zona: Viale Simonazzi-Rosta-Ospedale-Pappagnocca-Buco del Signore
Mostra su mappa
Orari: Dal lunedì al venerdì 9,00 - 13,00; 15,00 - 20,00. Il sabato 9,00 - 13,00; pomeriggio su appuntamento
Affiliato
Reggio Emilia 4 Srl
Viale Simonazzi, 8 42121 Reggio Nell'Emilia (RE)

2026 Tecnocasa Franchising S.p.A. - P. IVA 08365160152 - Via Monte Bianco 60/A 20089 Rozzano (MI). Ogni agenzia ha un proprio titolare ed è autonoma. Privacy policy | Policy utilizzo | Cookie policy