Quadrilocale in vendita

Reggio Nell'Emilia, Via nenni - Ospedale
€ 325.000
Prezzo aggiornato
4 locali 4 locali
146 Mq 146 Mq
2 bagni 2 bagni

Quadrilocale in vendita

Reggio Nell'Emilia, Via nenni - Ospedale

Descrizione annuncio

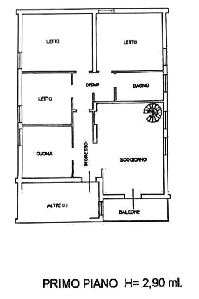
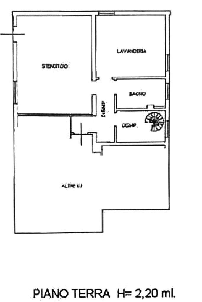
OSPEDALE: Proponiamo ampio appartamento, ideale per chi cerca spazio e comfort. Situato al piano basso di un edificio civile, l'immobile è stato completamente ristrutturato nel 2015, garantendo un ambiente moderno e funzionale.

La proprietà offre tre camere da letto, perfette per famiglie numerose o per chi desidera uno spazio aggiuntivo per studio o hobby.

I due bagni assicurano praticità e comodità per tutti i membri della famiglia. Al piano terra, un mini appartamento aggiuntivo offre ulteriore versatilità, ideale per ospiti o come spazio indipendente.

Il riscaldamento autonomo permette di gestire al meglio i consumi energetici. Dotato di telecamere di videosorveglianza e sistema antifurto attivo e passivo .

Situato in una zona altamente residenziale e silenziosa, l'immobile gode di zero spese condominiali, rendendolo una scelta economica e vantaggiosa per chi desidera vivere in un contesto sereno e ben servito.

Per visite o informazioni chiamare l'Agente Immobiliare Virelli Pietro 329.9827164

Mostra tutto

Nelle vicinanze

Trasporto pubblico Trasporto pubblico
stazione di Reggio Emilia
stazione di Reggio Emilia
2,0 Km
Reggio Emilia Santo Stefano
Reggio Emilia Santo Stefano
2,8 Km
Centro commerciale Reggio Sud
Centro commerciale Reggio Sud
370 m
Rosta Nuova
Rosta Nuova
400 m
Reggio Ospizio
Reggio Ospizio
1,9 Km
Ricariche auto elettriche Ricariche auto elettriche
Eneldrive Arcispedale S. Maria Nuova
520 m
Eneldrive Via Giorgione
1,6 Km
Eneldrive Piazza del Tricolore
1,6 Km
Reggio nell'Emilia Roversi | EnelX
1,6 Km
Eneldrive Palazzo Vescovile
1,8 Km
Scuole Scuole
Scuola secondaria di I grado "S. Pertini"
600 m
Scuola primaria statale "M.L. King"
640 m
Scuola primaria statale "Marco Polo"
700 m
Scuola Elementare "R. Pezzani"
760 m
Istituto Comprensivo "Pertini 2"
780 m
Farmacia Farmacia
Farmacia Ospedale H24
540 m
Farmacia San Pellegrino
630 m
Farmacia
1,3 Km
Farmacia Caravita
1,6 Km
Farmacia della gabella
1,7 Km
Ospedali Ospedali
Azienda ospedaliera Arcispedale Santa Maria Nuova
310 m
Casa di cura policlinica Villa Verde
1,0 Km
Supermercati Supermercati
CONAD Reggio Sud
280 m
Sigma
500 m
DiPiù
1,2 Km
Conad
1,2 Km
Coop Porta Castello
1,4 Km
Negozi Negozi
ECU
760 m
Panificio Reggiano
1,2 Km
Forno
1,5 Km
Pam Local
1,7 Km
Unity Store
1,7 Km
Bar Bar
Bar Prestige
150 m
Chocabek
530 m
Bar
1,0 Km
Bar Didì
1,2 Km
Caffetteria L'Incontro
1,2 Km
Ristoranti Ristoranti
Pizzeria da Tommy
470 m
Grottamarina
540 m
Pizzeria da Ale
720 m
Buco Della Signora
1,1 Km
Nostrano
1,3 Km
Mostra tutto

Caratteristiche

Rif.:
61115060
Piano:
2 di 2 (Piano basso)
Box:
1
Balconi:
1
Camere da letto:
3
Arredamento:
Parziale
Mostra tutto
Prezzo Prezzo
€ 325.000
Rata mutuo Rata mutuo
€ 1.508 / mese
Spese annue Spese annue
€ 150
Proponi il tuo prezzoProponi il tuo prezzo
Immobile valutato con T·Valuta

Classe Energetica

E
E
E
E
E
E
E
E
E
EP globale non rinnovabile:
156.00 kW h/m² anno
EP globale rinnovabile:
120.00 kW h/m² anno
EP invernale del fabbricato:
EP estiva del fabbricato:
Anno di costruzione:
1963
Riscaldamento:
Autonomo
Tipo impianto:
A radiatori
Tipo alimentazione:
Metano

Prezzo ridotto di €1 (2%%)

Ti interessa visionare l'immobile?

Fissa un appuntamento  Fissa un appuntamento

Richiedi informazioni

Clicca su Leggi per aprire l'informativa
* Questi campi sono obbligatori

Calcola il tuo mutuo

Semplice e senza impegno
Anticipo

( % )
Mutuo

( % )

pochi semplici passi

inserisci i tuoi dati
Questionario completato
Grazie per aver richiesto un appuntamento senza impegno con un nostro Consulente del Credito e Assicurativo.

Hai inserito correttamente tutti i dati necessari e a breve riceverai una e-mail con un link da convalidare per inviare i tuoi dati.
Affiliato
Reggio Emilia 4 Srl
Viale Simonazzi, 8 42121 Reggio Nell'Emilia (RE)

Il nostro staff


  • Antonio Iosso
    Affiliato

  • Eros Gasperoni
    Collaboratore

  • Giovanni Muto
    Affiliato

  • Carlotta Iori
    Coordinatrice

  • Nicolò Soragni
    Collaboratore

  • Pietro Virelli
    Affiliato
Viale Simonazzi, 8 42121 Reggio Nell'Emilia (RE)
Zona: Viale Simonazzi-Rosta-Ospedale-Pappagnocca-Buco del Signore
Mostra su mappa
Orari: Dal lunedì al venerdì 9,00 - 13,00; 15,00 - 20,00. Il sabato 9,00 - 13,00; pomeriggio su appuntamento
Affiliato
Reggio Emilia 4 Srl
Viale Simonazzi, 8 42121 Reggio Nell'Emilia (RE)

2026 Tecnocasa Franchising S.p.A. - P. IVA 08365160152 - Via Monte Bianco 60/A 20089 Rozzano (MI). Ogni agenzia ha un proprio titolare ed è autonoma. Privacy policy | Policy utilizzo | Cookie policy